TECHNICAL DRAWINGS
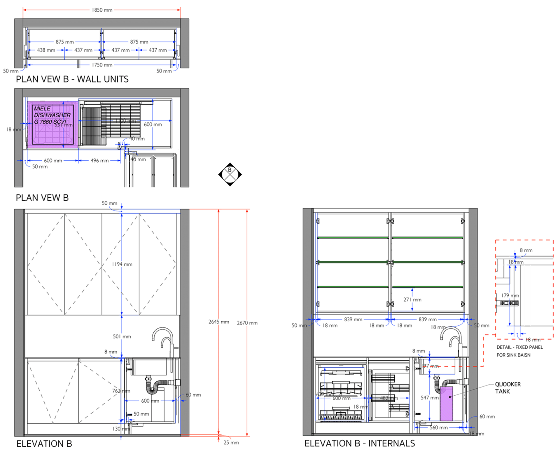
This section showcases a selection of precise, build-ready drawings that translate design vision into actionable detail. Each drawing reflects a deep understanding of spatial logic, materiality, and construction methodology—supporting seamless collaboration across disciplines. From annotated plans to detailed elevations and CAD documentation, these visuals demonstrate clarity, accuracy, and a commitment to design integrity.